A quanto pare fra non molto Starbase potrebbe non essere più l’unico sito di produzione di Starship:
Aggiornamento del sito con foto aeree.
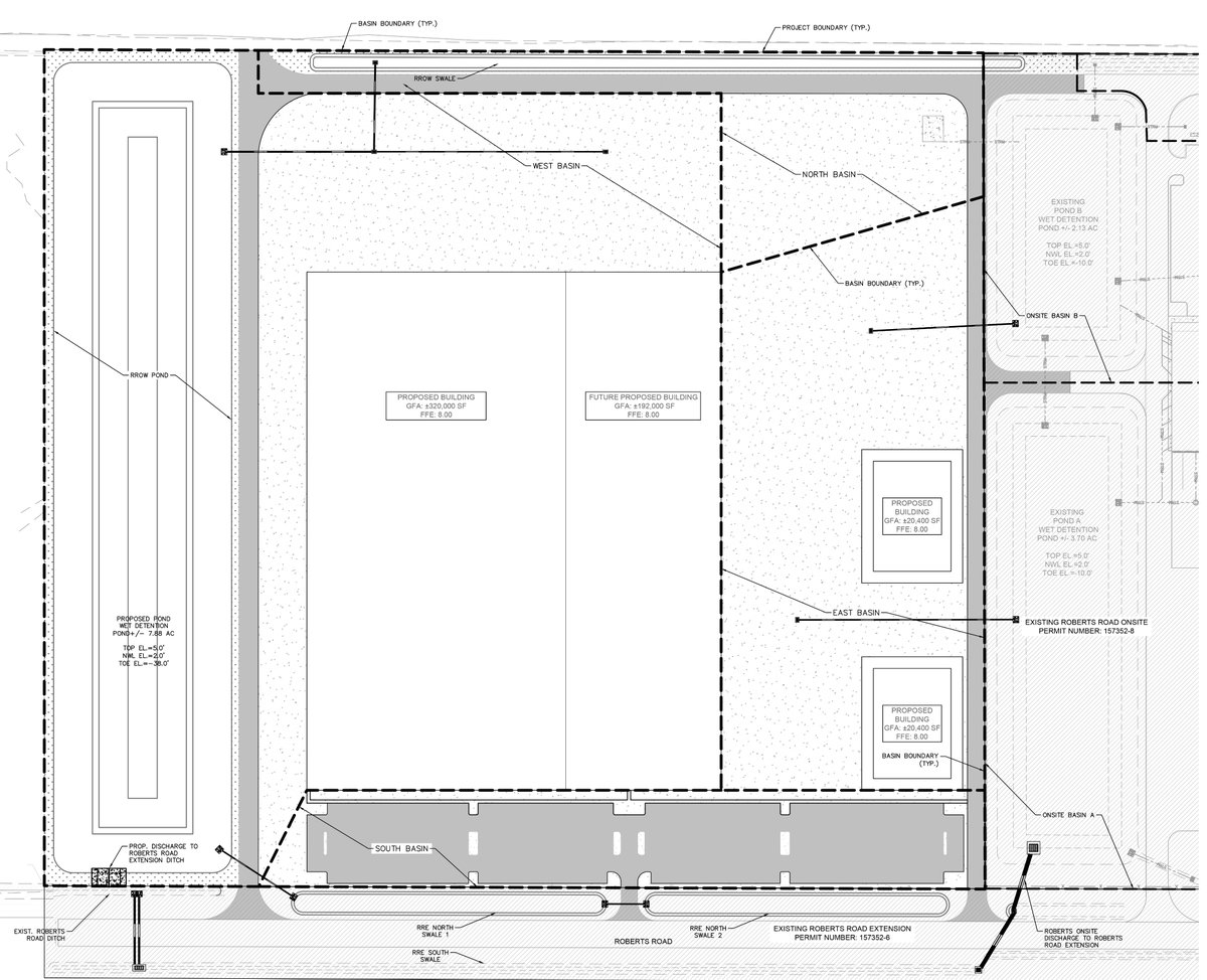
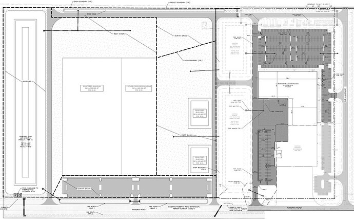
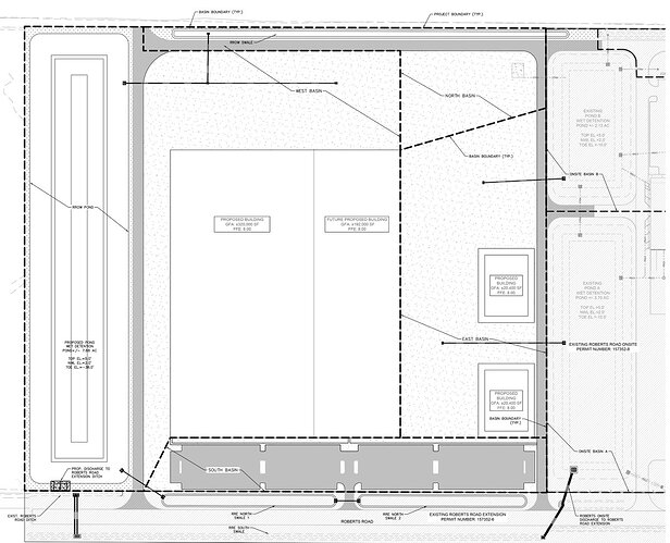
Alcune nuove strutture presso la Roberts Rd a Cape Canaveral procedono a pieno regime verso il completamento. Il terreno è stato sgomberato, un nuovo edificio per la ristrutturazione del booster è in fase di completamento e sono in corso molte altre strutture sconosciute.
Inoltre, nelle ultime foto si notano molti pilastri arrugginiti uguali a quelli che abbiamo visto a Boca Chica, i quali venivano utilizzati per realizzare le varie sezioni della torre di lancio.
Accanto ai pilastri sono visibili anche le barre che collegano fra loro tutti i pilastri.
Probabile che qui verranno assemblate le sezioni di torre e che poi saranno trasportate al sito di lancio 39a (o LC-49 che però è una palude e non ci sono lavori in corso).
Chris Bergin fa il punto sullo stato di avanzamento dei lavori in Florida in un suo articolo apparso ieri su NSF:
Questo thread sta diventando sempre più in auge, grazie ai progressi consistenti che si stanno verificando, con aggiornamenti che NSF ha reso settimanali.
In questa settimana:
-
Espanzione hangar X,
-
Nuovi serbatoi propellente a 39A
-
Fondamenta per l’inizio della costituzione del cantiere di produzione di Starship.
-
Altre 6 piazzole (18 in tutto!) per realizzare le sezioni della torre. (A Boca Chica ce ne erano circa 4)
Quest’ultimo punto sembra mostrare le intenzioni di questo programma, che appare più spedito, sfruttando l’esperienza maturata a Boca Chica e il maggior spazio disposizione .
18 (per ora) basi per le sezioni di torre significa che ne potranno essere realizzate 2 quasi contemporaneamente.
Pur partendo successivamente, il sito trarrà vantaggio dalle esperienze maturate a BocaChica e potrà giovarsi di spazi più ampi, per una realizzazione più efficace.
Boca Chica nelle intenzioni di Elon Musk rimarrà come centro di ricerca avanzato, mentre questo sarà realizzato per soddisfare il fabbisogno di lanci frequenti.
Parti di torre in arrivo.
Domanda… Al KSC potrebbero lavorare ad un flame trench (spazio ne hanno…) invece che all’ultra complesso launch mount di Boca Chica? Credo che questo sia il pezzo di hardware che ha richiesto piú tempo in assoluto per la realizzazione…
Inizia la costruzione della torre di lancio
SpaceX deve crederci al 100% nel progetto starship visti gli investimenti
Sembra sia stato avvistato il primo segmento della orbital tower in FLORIDA!
LabPadre pubblica un aggiornamento dei cantieri di SpaceX in Florida. Altro materiale insomma per noi umarell spaziali.
Completate le prime sezioni della torre di lancio.
Secondo voi le completeranno tutte prima di trasportarle al sito di lancio oppure inizieranno a trasportale man mano che le completano?
potrebbero essere previste 2 torri al pad 39A? c’erano dei disegni di progetti proposti/ufficiali di SpaceX, qualcuno li ha?
Al pad attuale dovrebbe poi comparire un mini-VAB per il Falcon Heavy con fairing allungati per le missioni del DOD/Space Force
edit: dimenticavo che è in corso la valutazione per la realizzazione del nuovo pad 49
I pad 39C e D erano stati previsti addirittura già all’epoca dei voli Apollo, non se ne fece più nulla quando la NASA realizzò che il Congresso avrebbe prima o poi chiuso i rubinetti al programma Apollo.
Fonti immagini NASA e Life.


Continuano i lavori…
Ancora un aggiornamento fotografico sul sito nuovo di SpaceX dentro al KSC.
chissà quanto le strutture al KSC saranno simili a quelle di Boca Chica, probabilmente eviteranno le tende e realizzeranno direttamente la Starfactory come quella che sta crescendo a BC?
Se guardi le foto nel tweet, hanno sicuramente piantato le basi per dei pilastri nel terreno.
E’ probabile che sorga presto un nuovo capannone in quella zona…
Si in effetti a cedere i pilastri sembra una struttura rettangolare come quella nuova di BC. Chissà invece per le bay… se ne costruiranno direttamente una media e una big
Un interessante punto della situazione secondo i soliti appassionati beneinformati ![]()


